建築学科3年の宮田太郎さんが「建築新人戦2023」にて優秀賞を受賞しました。
建築学科3年の宮田太郎さんが「建築新人戦」において、優秀賞を受賞しました。
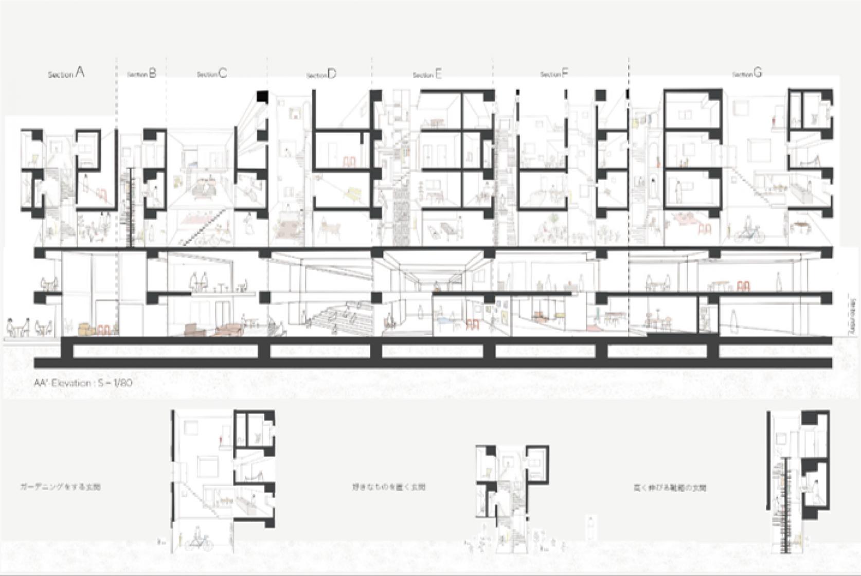
3年前期の南青山コンプレックスの課題で「、ときどき玄関」というテーマのもと応募作品約1200点から、一次審査(100点の作品選出)、二次審査(16点の作品選出)、公開審査(8点選出)を経て、最優秀賞一点、優秀賞二点のうち優秀賞に選ばれました。
建築新人戦とは、所属する教育機関(大学・短期大学・専門学校・高等専門学校)で取り組んだ設計課題作品を対象に実施するコンテストで、一次審査を突破した100作品は展覧会場(梅田スカイビル)に展示され、上位入賞者はアジア建築新人戦への日本代表となり、同世代のアジアの学生達とも競い合うことになります。これは今後活躍が期待されるゴールデンルーキー発掘の場であるとともに、他校の学生との設計課題作品の対決や交流を通じて、自らの構想や技量そして自身の所属する教育環境を問い直す場でもあります。
おめでとうございます。

